
Дом “Анди Маер”
Пфорцен, ГерманияГод реализации
2019Локация
Пфорцен, ГерманияВремя строительства
24 мес.Бюджет
₽Площадь строения
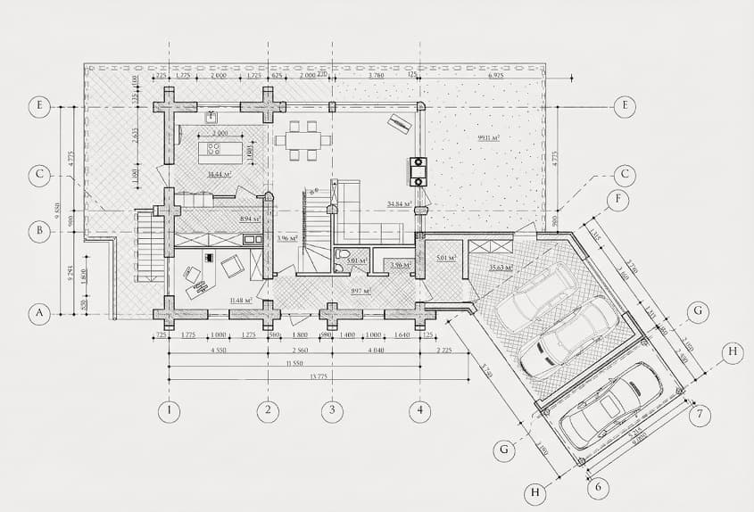
241 м²Этажность
2 этажаТехнология
КомбинированнаяСтатус
Завершен2 / 4
Дом из сибирской ели с элементом фамильного дерева
Этот дом мы строили для одного из наших заказчиков из Германии. В части бревенчатой конструкции дома, использовано дерево с сохранёнными ветвями для дизайна интерьера, как фамильное дерево
Когда он заказал нам строительство своего дома и поделился этой информацией со своими друзьями, они сочли его сумасшедшим, шутили над ним и говорили, чтобы забыл про свой дом и не ждал ничего из России. Как вы думаете, каково было их удивление, когда мы приехали к Анди собирать его дом, который привезли из России? Анди с гордостью показывал своим друзьям дом и радовался, глядя на их реакции.
Когда он заказал нам строительство своего дома и поделился этой информацией со своими друзьями, они сочли его сумасшедшим, шутили над ним и говорили, чтобы забыл про свой дом и не ждал ничего из России. Как вы думаете, каково было их удивление, когда мы приехали к Анди собирать его дом, который привезли из России? Анди с гордостью показывал своим друзьям дом и радовался, глядя на их реакции.
Статьи и видео

1/8

2/8

3/8

4/8

5/8

6/8

7/8

8/8

РОЖДЕСТВЕНСКОЕ ДЕРЕВО, ФАМИЛЬНЫЙ СИМВОЛ, ИНДИВИДУАЛЬНЫЙ СРУБ.
Статьи и видео

1/6

2/6

3/6

4/6

5/6

6/6
