
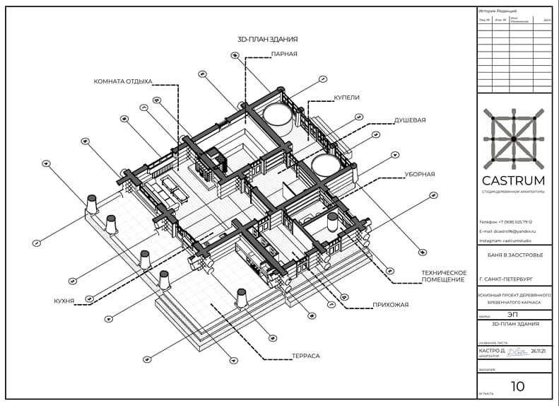
Рубленая Баня на берегу Ладожского озера
Аугсбург, ГерманияГод реализации
2020Локация
Аугсбург, ГерманияВремя строительства
24 мес.Бюджет
₽Площадь строения
145 м²Этажность
1 этажТехнология
КомбинированнаяСтатус
Завершен0 / 4
Рубленая Баня из сибирского кедра на берегу Ладожского озера
Эта рубленая баня из сибирского кедра стала одним из самых тёплых и душевных проектов в нашей практике. Мы построили её на живописном берегу Ладожского озера для частного заказчика из Санкт-Петербурга. Кедр для сруба был заготовлен и обработан на нашем собственном производстве в сибирской тайге, что позволило сохранить природную фактуру древесины и задать дому по-настоящему живой характер.
Проект получился нетиповым и современным. По желанию заказчика деревянные поверхности были покрыты серым маслом с содержанием твёрдого воска — на розоватом кедре оно дало мягкий, тёплый оттенок, гармонирующий с водой и окружающим лесом. Баня выглядит сдержанно и стильно, оставаясь при этом наполненной природным уютом.
Для нас этот проект стал особенно ценным не только результатом, но и человеческой историей — именно такие работы вдохновляют нас создавать дома и бани из кедра для людей по всей России и за её пределами.
Проект получился нетиповым и современным. По желанию заказчика деревянные поверхности были покрыты серым маслом с содержанием твёрдого воска — на розоватом кедре оно дало мягкий, тёплый оттенок, гармонирующий с водой и окружающим лесом. Баня выглядит сдержанно и стильно, оставаясь при этом наполненной природным уютом.
Для нас этот проект стал особенно ценным не только результатом, но и человеческой историей — именно такие работы вдохновляют нас создавать дома и бани из кедра для людей по всей России и за её пределами.
Статьи и видео

1/7

2/7

3/7

4/7

5/7

6/7

7/7

СИБИРСКИЙ КЕДР БОЛЬШОГО ДИАМЕТРА, НАТУРАЛЬНЫЕ ФАКТУРЫ
Статьи и видео

1/5

2/5

3/5

4/5

5/5
